Topkapı Sarayı Set Duvarı - İstanbul
Tramvay Han - Karaköy/İSTANBUL
Kagir Konut-Kumkapı/İSTANBUL
Kalıntı Projesi - Fatih/İSTANBUL
Çorlu Tren Gar Binaları - Tekirdağ
Pembe Köşk-Sultanahmet/İstanbul
Kagir Konut - Kadıköy/İSTANBUL
Kagir Ambar Binası - Silivri/İstanbul
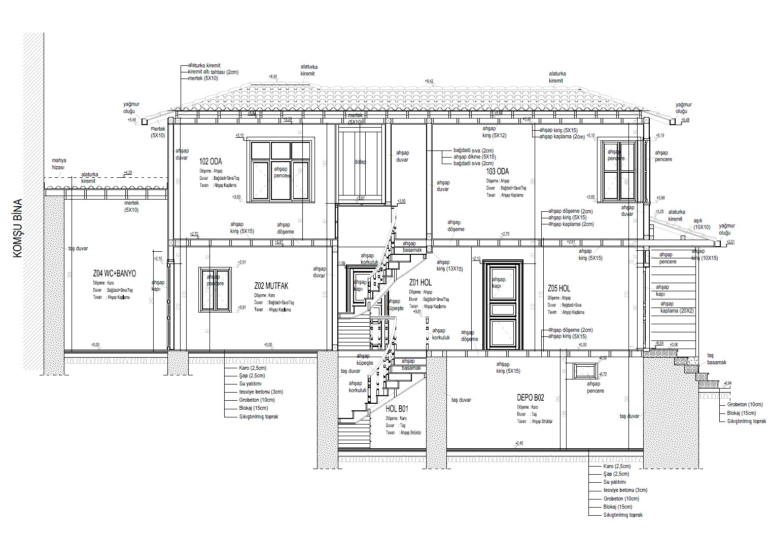
Ahşap Konut 8791 - Silivri/İstanbul
Böcekhane - Eskihisar/Gebze-Kocaeli
Ahşap Konak-Selimpaşa/İSTANBUL
Kagir Konut- Fatih/İSTANBUL
Turabi Baba Türbesi-Kasımpaşa/İstanbul
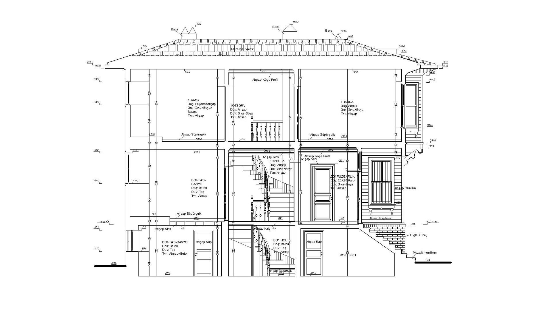
Ahşap Konut 80-37 - Fatih/İstanbul
Ahşap Konut 86-11 - Fatih/İstanbul
X
Right click
No right click